12米x10米宅基地盖欧式好还是新中式好?

发表于 讨论求助 2021-11-23 06:18:01

要盖房

就找大品牌

易盖房

设计、施工、装修、家居

一站式服务


很多业主

对选择什么样的

建筑造型

还是非常纠结?

今天小编为大家带来

两套不同风格的图纸

看看您更喜欢哪一个吧


易盖房网欧式自建房

业主想要一个简欧式的住宅,强调设计要有气势,尤其是门头需要重视,基地要垫高一米左右;业主有一个期望原则:用最少的投入,获得较好的体验,控制成本,没有后期维护压力。

整体风格为简欧式风格,外立面采用真石漆和墙砖做涂装,露台外围用石制形栏杆做装饰和防护,看着大气上档次,屋顶瓦采用青灰色;

入口处起始5步台阶到达第一个平台,紧接又来两步到达第二个近门平台,入户经过两个方底圆形的罗马柱,最后到达同样是圆顶的入户门,整个入户的体验过程让人难忘,门口的带入感非常强,给人一种上升感,一种递进感,一种豪迈,一种荣耀......相信业主每次踏上这个门头都会有不一样的感情。

二层的大露台增加了建筑的层次外,也使业主和家人有了休闲的场所,试想一家人围坐在这里,喝着茶,聊着天,看着日出和日落......

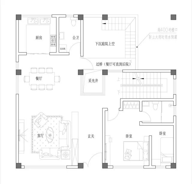
△一层平面


住宅一层入门处设有入室花园,为室内做一些绿化,可净化一些空气,客厅和餐厅用博古架做遮挡,将二者分开,布局上更整齐,客厅后面设有娱乐室,可以饭后之余打打麻将,符合农村的居住习惯,封闭式厨房避免油烟的扩散;还设有两处卧室,老人卧设为套间,让老人居住更加方便,客卧使用客卫,旁边设有洗衣房;

△二层平面


易盖房网新中式自建房

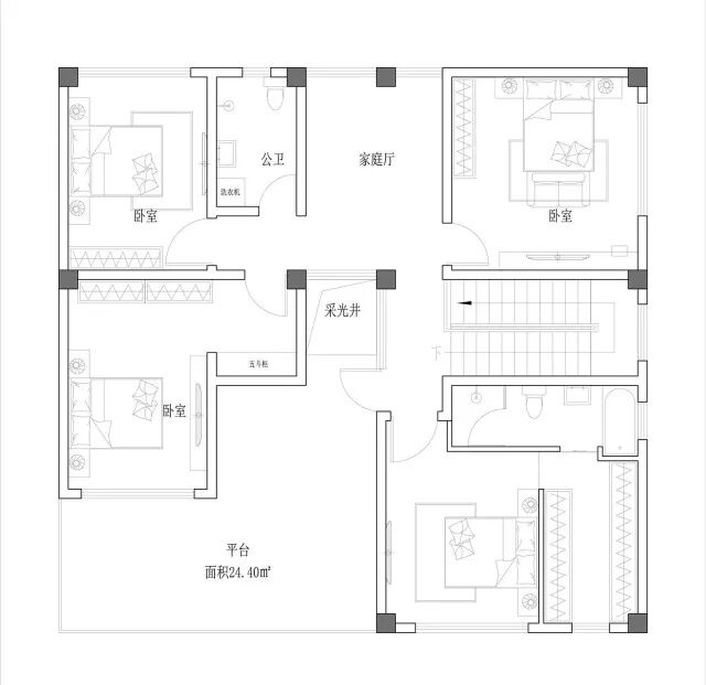
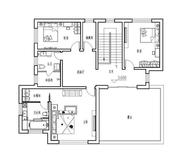
业主希望房屋地上两层,一层为客厅、餐厅、厨房以及一个老人房;二层则是三个房间加一个家庭厅,地下一层,主要是一些娱乐休闲空间;地下室主要通过下沉庭院和二楼的采光井采光,屋顶为坡屋顶,设露台,面积控制在25平米以内,建筑结构为框架结构,要求院内做景观,还要有5m进深的菜地。

建筑整体采用灰色系,围墙采用青砖材质(考虑造价也可红砖外喷真石漆),根据业主要求,几乎一半面积用来居住,一半面积用来做景观和菜地,真不愧是自家居住的农家院~

沿着青砖围墙,大量种植了竹子,不仅美化环境,营造良好景观,同时也有步步高升的寓意。在东北角,围墙高度被有意降低,以消除围墙对于下沉庭院采光的影响,同时也要保证私密性和安全性。

沿着青砖围墙,大量种植了竹子,不仅美化环境,营造良好景观,同时也有步步高升的寓意。在东北角,围墙高度被有意降低,以消除围墙对于下沉庭院采光的影响,同时也要保证私密性和安全性。

农家院设有三层,地下一层主要是娱乐使用,设有棋牌室,影音室,台球厅还有一个小小的储备间,门设有两处,一处下沉的庭院可进入,一处室内同是可上下出入,地下室主要通过下沉庭院和二楼的采光井采光;一层为客厅、餐厅、厨房以及一个老人房;二层则是三个房间加一个家庭厅,还有一处露台,可以做夏日烧烤之地~

△负一层平面图

△一层平面图

△二层平面图

△正立面图


您以为这就完了么?


小编觉得必须再拿出点干货您才愿意分享这篇文章啊?所以我又整理了史上最全关于欧式自建房和中式自建房特点的知识分享给大家。


欧式风情小洋楼


很多业主发现越来越多的欧式小洋楼美不胜收,也希望自己家的房子有欧式特色。

欧式风格建筑在身边越来越多,逐渐被越来越多的人接受。

生产相应欧式构件的厂家也越来越多,相应的行业成本也逐渐降低。

因为以上几点原因欧式小洋楼在我国别墅市场被越来越多的人接受。


雅致经典中国风


在欧式建筑占据农村小洋房主导地位的今天,有很多业主反而越来越注重传统文化,对中式建筑更加情有独钟。

古典与现代的结合让中式建筑呈现出前所未有的魅力,中式建筑更注重建筑与周边环境的融合,传统的元素也让中式建筑的细节更加丰富。

中式建筑的园林景观也能更好的体现我国植物的特色。


欧式与中式细节对比


①院落入口


欧式院落的入口以铁艺门为主,两侧为具有装饰线脚的门柱

中式建筑的入口以木材质为主,辅以中式的花纹图案或格栅。


②屋顶样式


欧式建筑的坡屋顶多采用黑褐色瓦片,坡屋顶以相互组合较为复杂的整体铺屋顶为主,欧式的老虎窗也是其屋顶特色之一。

中式的民间建筑屋顶主要以灰色的屋面瓦为主

带有弧度的坡屋面起翘是中式建筑特有的元素

马头墙等中式元素也是中式建筑独有的元素

在新中式的建筑中,设计师往往将坡屋面进行几何化的简化,并将新材料运用进来,使得建筑拥有了别具一格的特色。


③窗户


欧式的窗户常常运用具有欧式线脚的建筑构件来装饰,或者用铁艺的护栏作为装饰,与建筑整体立面风格相统一

中式门窗多采用传统花格来装饰细节

用瓦片等物品做的镂空窗户可以营造出室内别样的空间感

传统的中式建筑多扇门皆为采光窗户,适合南方气候较温暖的地方

新中式的建筑中断桥铝等新材料门窗使用较多,窗框简洁大气

引用中式元素的格栅也是常用的装饰手法


④庭院景观


欧式建筑的庭院绿化一般以草坪和灌木为主,几何感强烈的布局规划。一片绿意盎然~

中式庭院布局灵活,多用低矮乔木,竹子等植物作为绿植,讲究曲径通幽,借景等等手法

以上

就是小编为大家介绍的

欧式和中式风格的差别

如果您喜欢这篇文章

可以分享更多的朋友


想看更多建房知识


可关注“易盖房”公众号


点击查看:

想要盖房子不后悔,不过时,收藏这篇文章就够了

一辈子只盖一次房,就找专业设计+施工,省事又省钱

要盖房

就找易盖房网

设计、施工、装修、家居

一站式服务

省心、省钱、省时

让你盖房不留遗憾

为什么乡亲们盖房子都找我们?

易盖房作为一家专门为中小型建筑提供设计、施工、装修、家居等综合服务的机构,将更好的服务于有建房需求的用户。

易盖房致力于提升新时代房屋建筑品质,让人人都能享受到优质设计施工服务。在同造价的基础上帮助业主建出更满意的住房,让建房不留遗憾!!

丰富成品图纸

△丰富图库内容


△丰富图库内容

低价定制设计

△设计申请页面


全国专业施工队

△全国范围内专业施工

△施工队风采

全国质保服务

易盖房设计施工一站式服务的全程高品质把控,让我们敢于向用户承诺全国质保,保证房屋的结构可靠性,装饰工程的质量,防水、防潮、供暖、供冷等设备的可靠性。

怎么找到我们?

联系我们

1.点击文章左下角“阅读原文”后在相应页面留下您的联系方式,我们客服会尽力在第一时间联系您。

2.微信搜索公众号“易盖房”或扫描下方二维码关注后留言。

北京总部

欢迎您来参观考察

公司地址:北京市东城区西草市东街甲34号院9号楼

发表
26906人 签到看排名