+问答厨房这块抽油烟机用直吸的好还是侧吸的好?

发表于 讨论求助 2022-03-03 13:32:05


问答又出新款啦

大家现在有问题

可以点击我们的“生活社区

然后在点击“所有话题

在“你问我答”版块里面上传你想问的问题(还可以附带图片哟)



【+问答no.139】你提问 我回答

想要参与我们的【+问答】

留言回复【您的装修问题】

例:实木地板划痕怎么修复?

也可以回复关键字“问答”查看详情哦

您也可以通过右下角【+问答】栏目查看问题征集往期回顾[也许您的问题在这儿就能找到答案]




本期我们有三个来自网友的问题为大家解答哦!看看是不是也能帮到你呢~?




栏目特邀解答专家
陈凯宇:
大浙网家居主管
室内装饰监理师



网友逸ღ尘﹏' 提问:请问专家,我这个户型在风水上有没有什么问题,要怎样化解?


陈老师解答:      

       这个户型在中间套中很常见,就是我们常说的进门直冲阳台,有句话叫做“前通后通,人财两空”,说的就是这种现象,风水上叫做不聚气。可在中间摆植物化解或进门处设置玄关,以减少空气的直接对流,还有种方法就是安置落地窗帘,或者不要经常性地敞开这个阳台门。


网友 coco-yu 提问:你好 我家现在装修厨房这块抽油烟机用直吸的好还是侧吸的好?

陈老师解答:

    

油烟机其实侧吸跟顶吸主要看你购买的产品,不一定说真的顶吸比侧吸强,或者侧吸会比顶吸的更好。这两类产品一直都在更新换代。要说两者缺点么,就是顶吸式距离灶台较远,有些油烟还未被吸收就已经扩散了。而侧吸的油烟吸收升腾的部分是没法保证的。但主要还是看你平时的炒菜习惯,油少放点,也有利健康。




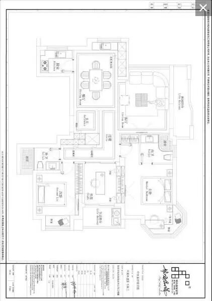
网友阿白提问请大师帮我看下我房子的设计图纸。


陈老师解答:

 你的这套图纸设计不错,设计师给你考虑了很多储物空间。另外动线也调整地比较好。建议后期在软装的时候客厅窗帘尽量选厚重一些,因为你的电视背景墙背光,白天看电视恐怕反光会比较厉害。另外,还要合理安排你家的冰箱位置,因为厨房稍微小了点,建议放在厨房门口会比较好。主卧电视背景尽量砌墙做,用衣柜隔音会差,书房也不缺这点墙体空间。



我们的微信问答还会持续进行,装修上的困惑都可以留言给我们,我们都会尽快解答哦!



想要参与【+问答】,回复关键字“问答”查看详情

您也可以通过右下角【+问答】栏目查看问题征集往期回顾





关注“大浙家居”,装修路上更省事!

1)回复“私享家”或者“私享家XX”(如私享家1、私享家2、私享家3…),内有各种真实装修案例及部分清单;

2)回复“美式”、“地中海”、“中式”、“混搭”、“北欧”、“简约”、“欧式”查看各种风格案例及部分装修清单;

3)回复问答,轻松了解以往网友问题征集及专家解答;
4)你来提问,专家亲自回答,内容涵盖各种家居及装修专业观点。
点本页标题下方小蓝字“大浙家居”加关注,或选添加朋友->搜公众号“dazhejiju”。
如果我们的内容对您有帮助,请推荐给您身边的朋友哦~





青岛黄岛租房
发表
26906人 签到看排名