广州版【改造家】 90平房子搞出130平效果 (附详细干货帖)

发表于 讨论求助 2022-07-24 09:26:30

点击上方广州妈妈网 加我吧

广州最值得看的微信号独家亲子孕育实用攻略,美食、旅游、打折等优质生活信息一手掌控!商务合作请加小编号( gzmengmengda



我叫小熊,87年出生的苦逼小青年,去年刚领证,目前在装修婚房。。


虽然曾在妈网上泡了不少个日日夜夜,看了不少美妈的装修日记好好恶补功课。
但发现实际操作以来,各种问题一个接着一个,没个消停。。。
真心发现。。。装修是一场绝对让人吐血的战役啊!!!!

建筑面积:90平方
装修费用:4万半包(目前来看一直不断上升)
装修公司:华浔品味装饰广州海珠分公司(设计师和工程管家都是这公司的)

设计师:秦霆(人特别好,我和老公都觉得很有责任心,日常表现后续会交代哈!)
工程管家:余显华先生

装修风格: 简约+宜家+小清新风格
总费用预算:10万以内完成硬、软装修

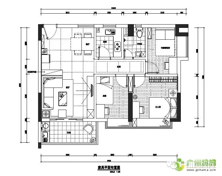
图1是户型图,图2、3是设计师帮我们家弄的客厅效果图。





干货帖—木地板篇

由于在装修前,我和LG就已经达成共识要把三个房间的地板全换木地板,所以我就一直在做功课,看过好几个牌子,什么大自然、安信、圣象、贝尔(淘宝貌似很红)、德尔、世友等等品牌都看了个遍,也去百安居、靓家居、五洲装饰城、宝岗大道那个建材城看过,始终觉得还是大自然地板给我的感觉最好,再加上身边也有朋友买了大自然木地板而且质量挺好,打理方便,所以我就锁定了大自然地板了。。。

★确定实木、复合实木、强化地板

实木地板:优点是用实木直接加工成的地板,安全性能高,脚感舒适,实木地板容易起拱、翘曲或变形,铺装好之后还要经常打蜡、上油,否则地板表面的光泽很快就消失,总括而言就是太矜贵,打理起来需要用心,呵呵。

多层实木地板:优点是不易变形开裂,干缩膨胀系极小,具有较好的调节室内温度和湿度的能力,面层能显示出木材天然木纹,铺装简捷,缺点是实木复合地板的生产必须用胶,不象传统实木地板那样除了木材本身基本没有其他。

强化地板:最大的优点就是耐磨,安装容易、便宜又容易打理,缺点是强化地板由于采用仿生技术印刷的纸张,与天然实木相比,整体铺设效果失真,视觉效果较为生硬,没有脚感,最重要的是,那充满甲醛的内涵,呵呵,果断放弃。。

最后决定,虽然实木地板贵点,难打理一点,但是还是以身体健康为重,就他了。。

★重要的决定----大自然的龙凤檀(二翅豆)

我们选择龙凤檀的最重要是看着顺眼,纹理大气,颜色也不会过于深沉,而且材质适合南方地方,四月天也不用害怕啦,呵呵,又耐磨,本身的材质又防白蚁(据说是白蚁怕它的味道)。


干货帖—抽油烟机

欧式烟机:顾名思义,是参照欧美国家的饮食习惯设计的烟机,但由于外国人烹饪不像我们中国人讲究锅气,所以一般油烟产生的较少,小排量的抽油烟机也能满足了,优点是美观,噪音小,缺点是功率低,也就是排烟效果相对来说会弱,当然这也不是绝对的,如果能给得起贵的价格,其实还是有又能功率高二噪音又小的欧式烟机,嘿嘿。。。都是钱作怪!

侧吸式烟机由于进风口离油烟源头更近,能第一时间锁定住产生的油烟,并且可以有效的缩短油烟上升的运动距离,排烟效果更为理想。在集烟腔外观上采用了敞开式的设计,增大了烹饪空间范围,做饭时不存在压抑感,更有效避免了碰头事件发生。优点是油电隔离,经久耐用,油、电路分离,降低故障率,有效延长使用寿命,油烟分离板一秒钟可取下,清洗方便快捷,特别是我看中的那款侧吸式的前板还有高强度钢化玻璃,美观大方又容易清洗,50cm高度与吊柜刚刚好能配合安装,符合我的一切要求。。。
所以最后,侧吸式烟机完胜!

干货帖—阳角线

▲阳角线是什么?(灰常简单,看图你肯定就明白啦)


▲pvc阳角保护线是啥?(继续看图你也会明白啦)


这种护角线可以让墙身的阳角部分挺直美观,大大增强了墙角的耐撞击力,保护墙角不受损坏,有效地避免了因墙角碰坏而反复修补的麻烦。

这货是直接嵌搁在墙体里面,边角位置批刮可以利用此塑料条直接批成一条直线,使得阴角、阳角棱角更分明,边线更顺畅美观,充分保护家里的阴阳角,免除了日常的人为碰撞破损。

灯具篇

为了我家的灯,我真的是几乎都把淘宝的买灯店铺翻了一遍,,也收藏了好多,无奈好多好看的都是地中海风,啥田园风,小熊真的好稀饭哟,可惜可惜。。和我家风格不搭。。。

小熊家的简约现代混搭宜家风格的灯基本都找不到比其他风格炫眼的货。。。我家LG又是一个及其追崇简约的人。。。所以我收藏的啥啥有设计感的,啥啥有亮点的灯,我家那位都一一否决。。。 其实我选的灯,设计师也说好看的,5555555

▲主人房的灯----欧普的“阑珊”


▲书房的灯----欧普的“云裳”


▲小孩房的灯----欧普的“花花蝶”


▲客厅灯 餐厅灯---有故事的灯

哈哈哈,说起客厅灯,那背后真的是有故事的灯啊,犹如经历沧桑的男人,最后终于归于平淡一样,哈哈哈。。。一开始,小熊这种外貌派就和我家LG那种实用派产生了很大的差异,无论小熊收藏了哪款好看的,LG依然青睐他的吸顶灯,,而且是无敌简约版的,给大家看看。。

窗帘篇

买窗帘,我在网上看过,也去海印窗帘城打探过,最后还是锁定在中大布匹市场里面寻找。。。我和LG从中大一直走啊走,最后发现那个华岭窗帘城其实就在东晓南路边上,大家可以直接乘车到东晓南路站。。


不得不说,看窗帘真的会花多眼乱,不过好多事雍容华贵style,没法下手,我和LG两人差点看到眼睛都直了,呵呵,最后在这里的三楼发现了这家稍微小清新一点的店铺。。。是我们俩都喜欢的。

来看安装后的图,嘻嘻:
第一个介绍的是我的主人房。。。这个房间做了双层窗帘。。


下图是露了底层那个薄纱质地窗帘的图片。。。好喜欢这种朦胧的感觉,既有光亮,也可以看到外面的小景,但是又模模糊糊的感觉,哈哈哈

接下来,就是看看小孩房的效果啦。。。


接着是书房。。。书房,考虑到平时会看上网电影啥的,需要有遮光性能的窗帘,于是就挑了这种质地的,比较厚实,双面都可以用,老板娘帮我车了两边都可以用的窗帘头,不错不错,呵呵,亲自试验过,即使是大太阳晒过来,也十分遮光。。
款式如下:

毕业照

来张客厅照片,橘色的墙漆在阳光照耀下显得格外温馨。红色的地毯超级显眼美貌哦。整体搭配超级温馨。

来张茶几的细节图,细腿胳膊非常优雅好看哦。

搬家这么久,一有家人、朋友来我们家吃饭聚会,必须要称赞的就是我们家那伸缩自如的餐桌,宜家出品,999元,好用到爆炸说笑,说笑~


平时只有我和LG吃饭的话,桌子就按这种尺寸摆,特别够用,哈哈。

这个桌子是两边都可以拉伸的,所以我们按人数来决定把桌拉开的长度,呵呵,下图是只拉开一边的长度~这样的话,至少可以让6个人能十分宽敞地坐着~~~

超级迷你的鞋柜哦,看到上面的电盒子没有哦?其实里面隐藏的是电箱哦,是不是超赞啊。


赶快点击下方“阅读原文”参加装修大赛日记吧!可以获得免费烤箱哟↓↓↓

长按图片下载广州圈,用手机也可以随时随地的逛广州妈妈网!

商务合作&调戏小编加微信号:gzmengmengda



广州妈妈网微信全新升级,本地亲子攻略传女不传男

全方位解决孩子升学、医院看病、亲子旅游、购物特卖的问题!

回复“育儿”查看幼儿园学费、幼升小等学校的小道消息

回复“怀孕”查看产检攻略、产科医院大起底

回复“旅游”查看广州短途游、亲子游各种好玩的地方

回复“美食”查看广州粤菜、小吃、外国菜搵食地

回复“民生“查看广州社保医保、车检的快捷办事方式

回复“购物”查看广州哪里逛街购物买买买最划算

回复“厨房”查看广州人煲汤做饭秘笈,一秒钟变厨艺高手

回复“搞笑”查看笑爆肚的轻松内容,笑一笑,皱纹少

一开始玩,就停不下来,干货满到爆

更多精彩内容点阅读原文唷!

发表
26906人 签到看排名